Turistički kampovi nisu novost u svijetu, a ni u Hrvatskoj. Početkom 90-ih s povećanjem turističkih posjeta našoj zemlji njihova popularnost postepeno doživljava rast. Iako su to nekada bili prostori koji su podrazumijevali primitivniji i jeftiniji smještaj, uglavnom u sklopu autokampova, danas je situacija puno drukčija. Zanimljivosti privlačnost kampova je činjenica da su uglavnom smješteni na iznimnim lokacijama, tek nekoliko minuta udaljeni od plaže ili znamenitosti zbog koje se posjećuje određeno područje. To je oduvijek bio faktor koji je imao mnogo prednosti, iako je prije 20-ak godina smještaj zahtijevao određene kompromise i odricanja. Danas kampovi, uz već spomenutu vrhunsku lokaciju, obično nude i luksuznu ponudu te jedinstveno iskustvo zbog kojeg to postaje omiljeni oblik odmora čak i za one najzahtjevnije.
Jedan takav izrazito luksuzni kamp u kojem će se smjestiti deset modularnih kuća koje proizvodi tvrtka Modular Living uskoro otvara vrata na jednom od najljepših lokacija u Hrvatskoj, u Rastokama nedaleko od Slunja, poznatima po predivnoj prirodi i slapovima koje inače još i nazivaju Male Plitvice.
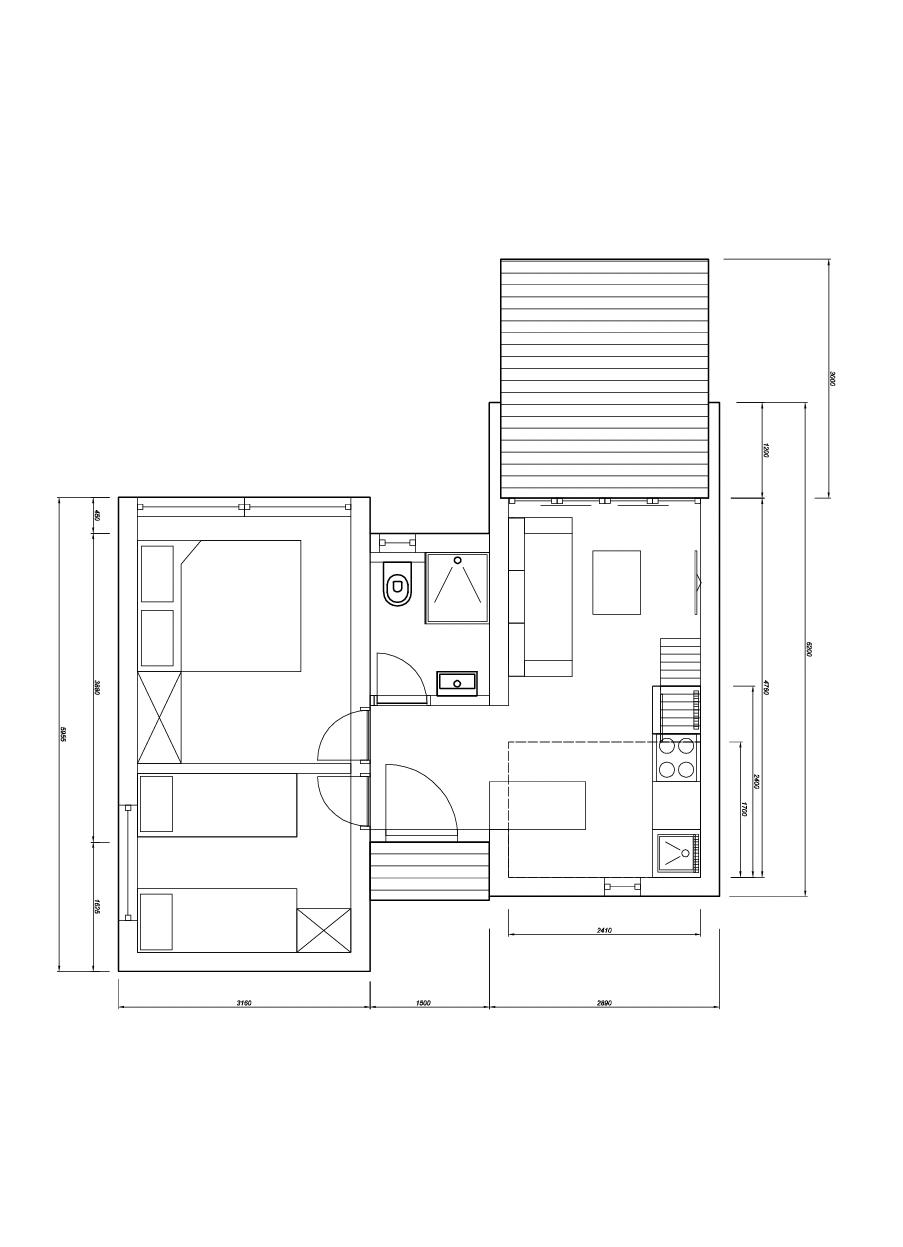
Tvrtka Modular Living, koja djeluje već 25 godina, poznata je po proizvodnji raznovrsnih modularnih objekata, a ovom su prigodom izradili deset izrazito luksuznih i modernih mobilnih objekata od 40 četvornih metara koji budućim posjetiteljima pružaju sve što je potrebno za idealan odmor. Svaka kućica sadrži tri modula koji se sastoje od ulaznog dijela, dnevnog boravka, kuhinje, kupaonice, spavaće sobe, galerije i terase. Čvrsta čelična konstrukcija rađena prema Modular Living sistemu gradnje zadovoljava najveće standarde kvalitete po kojima je ova tvrtka i poznata.
- Osim čeličnih konstrukcija koji su naša specijalizacija, U Modular Living objektima postigli smo ekvivalent toplinske izolacije od 35cm. uz pomoć termo vune, a sve to u 18 ili 24 cm debljine zida. Energetski razred koji postižu naši objekti su A++ standard. U našim objektima moguće je koristiti sve vrste tipova grijanja (električno, dizalice topline, grijanje na kruta goriva-drva). U ponudi imamo i grijanje koje se integrira u zidove i grije se kompletna konstrukcija, te se tako izbjegava zadržavanje snijega na objektima. Takvo grijanje u Švedskoj naišlo je na veliko oduševljenje klijenata koji cijelu godinu borave u kući. Na objektima koristimo stolariju visoke kvalitete. 8 komorni termo spoj proizvođača Salamander koji može doći u dvoslojnim, troslojnim ili četveroslojnim komorama. Sve instalacije su integrirane u zidove kao u klasičnoj gradnji te je objekt moguće opremit sa google sustavom za nadzor i komunikaciju sa objektom putem pametnog telefona - objašnjava Tonći Viljac, vlasnik tvrtke.
Tvrtka Modular living također voli svojim klijentima isporučiti unikatne objekt pa rado udovoljava njihovim zahtjevima. Tako je bilo i u ovom slučaju, sve kuće su osmišljene u suradnji s investitorima, a u konačnici će kamp krasiti moduli suvremenog i linijski pročišćenog izgleda s metalnom crnom fasadom koja ovija čvrstu konstrukciju, dok se unutrašnjost formira u toplim i prirodnim materijalima koji stvaraju ugodnu atmosferu za odmor duše i tijela. U kampu će biti i autokamp, bazen površine čak 90 četvornih metara te novi restoran koji će biti u sklopu već nadaleko poznatog restorana Ambar u vlasništvu Katarine Turkalj i njezine obitelj.
Sponzorirani sadržaj nastao u suradnji s tvrtkom Modular Living.


Za sudjelovanje u komentarima je potrebna prijava, odnosno registracija ako još nemaš korisnički profil....