Na regionalnom natječaju Mini Home: mala kuća u prirodi, portala Gradnja.rs pobijedio je rad iz Hrvatske, arhitektica Mateje Bonifačić, Ivane Slavnić i Mare Urode iz Rijeke, objekt mediteranskog tipa planiran na otoku Krku, koji je modularno i prefabricirano rješenje koje se može sastavljati po potrebama korisnika.
Karakteristike života na otoku prebačene su u jednostavan koncept montažne kuće u kojem more, sunce, nebo i lokalni krajolik igraju glavnu ulogu. Kod projektiranja objekta, objašnjavaju arhitektice, korištena je kombinacija tradicionalnih i novih materijala.
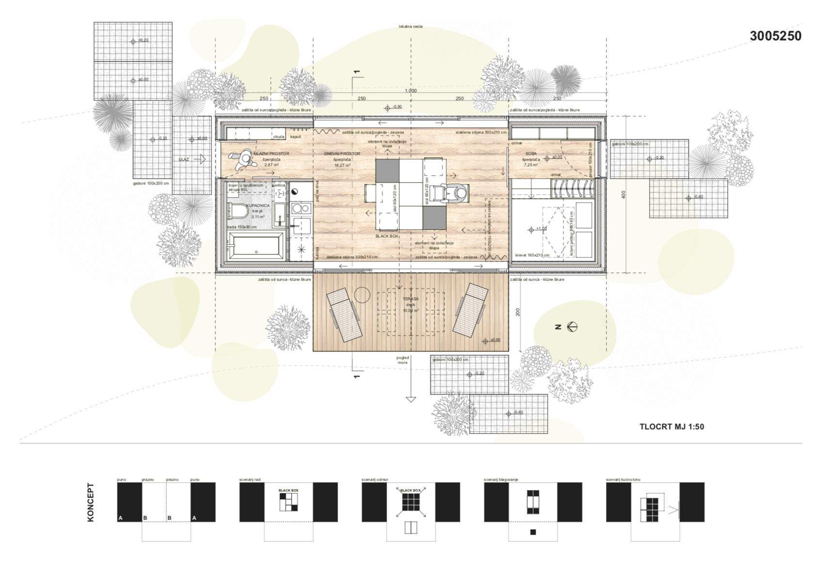
ČETIRI MODULA
"Temelji od gabionskih zidova evociraju grčke gromače koje su već stoljećima neizbježni otočki građevinski element. Konstrukcija od lameriranog drva predstavlja modernu primjenu tradicionalnog materijala - drva te pridonosi ekološkom dijelu projekta. Za završne obloge interijera također su korišteni lokalni materijali sloj furnira od maslina te ovčja vuna za modularne jastuke", objašnjavaju arhitektice u svome radu.
Vanjski gabariti građevine iznose 10 x 4 m. Objekt se sastoji od četiri modula ukupnih dimenzija 4 x 2,5 metara. Svaki modul se kamionom doprema na lokaciju te se ondje postavlja i dovršava. Ukupna površina objekta iznosi 32 kvadrata, dok je površina vanjske terase 10 kvadrata.
U dva puna modula smješteni su glavni funkcionalni prostori i noćni dio te dva prazna modula koji tvore središnji dnevni prostor namijenjen provođenju većeg dijela vremena budućih korisnika objekta. Taj fleksibilni centralni dio omogućuje korisnicima da organiziraju prostor prilagođen njihovim potrebama. Tako se primjerice radni prostor pomicanjem modularnih elemenata namještaja brzo pretvara u prostor za zabavu, kućno kino ili terasu.Mogućnosti prilagodbe su velike.
U prostorima objekta predviđeno je podno grijanje, dok je priprema potrošne tople vode putem solarnih kolektora i odgovarajućeg spremnika. U kuhinji se još nalazi i peć na drva. Uz standardnu opremu kuhinje i kupaonice i kućanske aparate, svi ostali elementi su custom made, dizajnirani kao integralni dio kuće.
Arhitektice Mateja Bonifačić, Ivana Slavnić i Mara Uroda pobijedile su u konkurenciji od 130 radova. Ono što je ovaj rad uspio bolje od drugih, prema mišljenju žirija, je to da postavi u centar prostor koji je uvjerljiv u smislu funkcionalne promjenjivosti, upravo zahvaljujući njegovom rasterećenju od predefiniranosti.
"Integriranjem funkcije rada, blagovanja i dnevne dokolice u centralni, dimenzijama komforan, od nepotrebnih zoniranja komunikacija rasterećen prostor, postignuta je opravdana, jasna i umjerena prostorna kulminacija, koja je ocrtava i kroz pojavnost objekta", smatra žiri.
SOLARNI KOLEKTORI
Rješenje je i uspješna reinterpretacija tradicionalne kamene kuće, karakteristične za primorske i dinarske predjele s prednjim i zadnjim dvorištem. Građevinski sistem i struktura se mogu vjerojatno izvesti bez nekih poteškoća, i prilagoditi kako bi se i ideja o kući na moru izvela prema potrebi vlasnika. Upitne su eventualno skupocjene i rijetke komponente projekta kao što je obloga interijera, ali se to, smatra žiri, vjerojatno lako može zamijeniti razradom pa je jasna ideja jednostavne i modularne arhetipske kuće, lake montaže. Vezano za instalacije, predviđeno je podno grijanje, dok se priprema potrošene tople vode vrši putem solarnih kolektora i odgovarajućeg rezervoara. U kuhinji se nalazi i peć na čvrsto gorivo. Kupaonica ima opremljenu kadu, wc, umivaonik, perilicu i bojler smješten u spuštenom plafonu. Kuhinja sadrži frižider, sudoper i štednjak s dvije ploče. Svi ostali elementi u prostoru su po mjeri, dizajnirani kao integrirani dio kuće.
Na natječaju Mini Home treću nagradu dobilo je rješenje Kuće na vodi arhitektica Marije Blagojević i Ive Bekić iz beogradskog studija Space Love, dok je drugu nagradu osvojio koncept Šumske kuće arhitektica Sanje Cvetković i Ane Curk iz Niša.


Za sudjelovanje u komentarima je potrebna prijava, odnosno registracija ako još nemaš korisnički profil....