Naslovnica
Interijeri
Nekretnine
Inspiracije
Stanovanje
Savjeti
Eksterijeri
D&D Vrt
Božić
D&D Award 2025
Naslovnica
Interijeri
Nekretnine
Inspiracije
Stanovanje
Savjeti
Eksterijeri
D&D Vrt
Božić
D&D Award 2025
Moj profil
Odjava
Traži
StoryEditor External
StoryEditor Internal
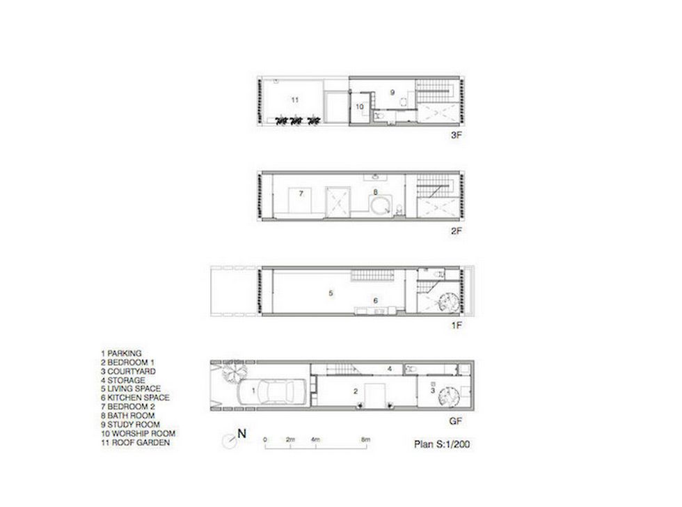
Najuža kuća s vertikalnim vrtom
Piše:
Dom i dizajn
Objavljeno:
15. travnja 2020. 03:41
Podijeli
1/
20
2/
20
3/
20
4/
20
5/
20
6/
20
7/
20
8/
20
9/
20
10/
20
11/
20
12/
20
13/
20
14/
20
15/
20
16/
20
17/
20
18/
20
19/
20
20/
20
Podijeli
Želite li dopuniti temu ili prijaviti pogrešku u tekstu?
Za sudjelovanje u komentarima je potrebna prijava, odnosno registracija ako još nemaš korisnički profil....
×
06. prosinac 2025 15:34
Za sudjelovanje u komentarima je potrebna prijava, odnosno registracija ako još nemaš korisnički profil....