Mali stanovi uvijek su pravi izazov za renovaciju i uređenje. Dom koji ćemo vam ovom prilikom pokazati nalazi se u samom središtu St. Petersburga u Rusiji. Uređen je u minimalističkom stilu s modernim 'štihom', a u cijelom interijeru ističu se neutralna bijela, siva i 'prljavo' blijeda boja s povremenim elementima jače nijanse.
Stan izgleda lijepo i skladno s minimalnim izborom količine namještaja, boja i oblika. Uz zid s TV-om, dizajneri su u dnevni boravak stavili i zanimljivu svjetiljku s pokretnom 'rukom' koja osvjetljava radni stol.
Stol se može pomicati tako da je okrenut prema sobi dok se koristi, umjesto da je okrenut prema zidu.
Visoki stol također se može koristiti kao mjesto za jelo, odnosno prostor u stanu gdje gosti mogu gledati televiziju ili uživati u pogledu kroz prozor.
Uz sam ulaz u stan smješteni su bijeli ugradbeni ormari, a u samoj sredini prostorije nalazi se jednostavna klupica sa spremištem za obuću.
Kako bi interijer bio što funkcionalniji, dizajneri su se dosjetili dvokrilnih vrata koja se povlače i tako otkrivaju zidnu kuhinju s elementima crne i smeđe boje.
Svoje mjesto u stanu, i to sa suprotne strane prozora, pronašao je radni kutak - radni stol, svjetiljka i stolac upečatljive žute boje. Da bi dodatno istaknuli minimalistički dio stana, jedan dio zida dizajneri su obojili u crnu boju.
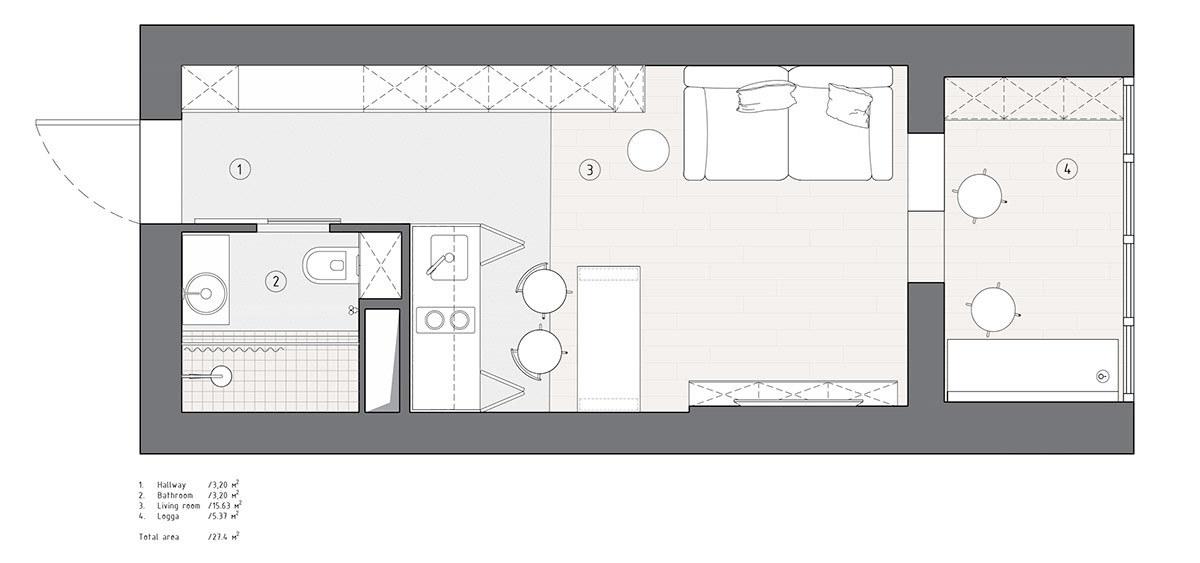
Kupaonica je, kao i ostatak stana, uređena u minimalističkom stilu kako bi se postigla što bolja funkcionalnost i oslobodilo što više mjesta. Ne smijemo zaboraviti da je ovdje riječ o samo 28 kvadrata.


Za sudjelovanje u komentarima je potrebna prijava, odnosno registracija ako još nemaš korisnički profil....