Naslovnica
Interijeri
Nekretnine
Inspiracije
Stanovanje
Savjeti
Eksterijeri
D&D Vrt
Božić
D&D Award 2025
Naslovnica
Interijeri
Nekretnine
Inspiracije
Stanovanje
Savjeti
Eksterijeri
D&D Vrt
Božić
D&D Award 2025
Moj profil
Odjava
Traži
StoryEditor External
StoryEditor Internal
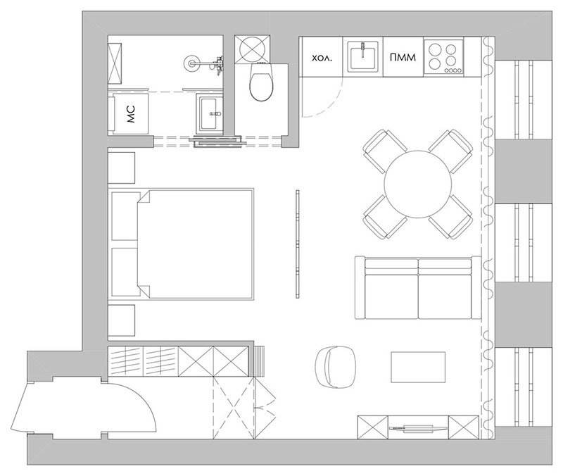
STAN OD 33 KVADRATA Moderna garsonijera za moderan mladi par
Piše:
Dom i dizajn
Objavljeno:
21. ožujka 2020. 15:01
Podijeli
1/
18
2/
18
3/
18
4/
18
5/
18
6/
18
7/
18
Maxim Maximov
8/
18
9/
18
10/
18
11/
18
12/
18
13/
18
14/
18
15/
18
16/
18
17/
18
18/
18
Podijeli
Želite li dopuniti temu ili prijaviti pogrešku u tekstu?
Za sudjelovanje u komentarima je potrebna prijava, odnosno registracija ako još nemaš korisnički profil....
×
05. prosinac 2025 23:59
Za sudjelovanje u komentarima je potrebna prijava, odnosno registracija ako još nemaš korisnički profil....