U malim stanovima pomoću galerije se proširuje prostor koristeći pritom visinu stana za njenu gradnju, a u luksuznim domovima galerije predstavljaju razigranu i mladenačku alternativu klasičnom rasporedu prostorija. U stanovima s otvorenim rasporedima galerije omogućuju stvaranje privatnosti bez gradnje suvišnih zidova i tako dalje... U nastavku pogledajte tri iznimna stana u kojima su spavaće sobe smještene upravo na galeriju te pritom izgledaju i više nego udobno.
Stan u potkrovlju s nakošenim krovom i samo 19 četvornih metara prostora na pametan je način osmišljen kako bi se dostupni kvadrati iskoristili na najbolji mogući način. Pri uređenju dizajner Karol Cieplinski zadržao se na jednostavnim detaljima jer su elementi same arhitekture, poput opeke, greda, nakošenog krova i parketa i više nego atraktivni detalji u ovom malom prostoru.
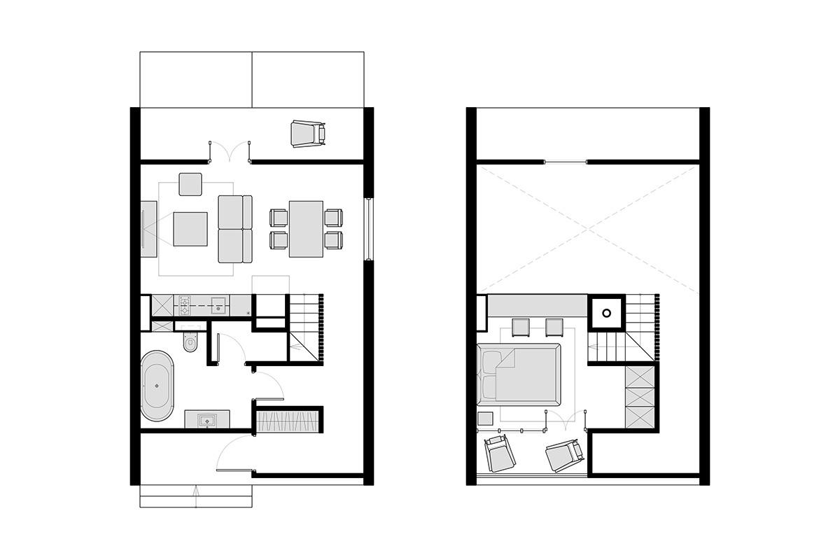
Dnevni boravak, kuhinja i blagovaonica dio su jedinstvenog prostora, a spavaća soba smještena je na galeriju iznad ulaza u stan do koje se dolazi pomoću klasičnih ljestava. Sam prostor galerije je mali pa je stoga namještaj u spavaćoj sobi sveden na minimum.
Drugi stan projekt je arhitektonske tvrtke Curly studio, a s iznimno visokim stropovima predstavlja idealno mjesto za gradnju galerije sa spavaćom sobom. Njenom gradnjom dobivene su čak dvije dodatne prostorije, spavaća soba koja je smještena na samoj galeriji i kupaonica s kadom u njenoj unutrašnjosti.
Bočna strana te strukture iskorištena je za postavljanje kuhinje, a cijeli je stan vizualno povezan uporabom drvenih površina i namještaja sličnih svjetlijih nijansi. Prostor na galeriji natkriven je kosim krovovima s brojnim prozorima koji čine sobu osunčanom i svijetlom.
Zahvaljujući impresivnoj visini stana i golemim prozorima, ovaj se prostor doima otvorenim i prozračnim, iako je sam tlocrt stana kompaktan. Osmislio ga je dizajner Valentin Turuianu kao luksuznu oazu usred grada sa skrivenom spavaćom sobom do koje se dolazi žutim visećim stepeništem izrađenim od metala.
U cijelom stanu prevladava kombinacija svijetlog drva, bijele, crne i mat sive boje te žutih upečatljivih detalja poput samih stepenica, a čak je i balkon vizualno povezan s ostatkom stana.


Za sudjelovanje u komentarima je potrebna prijava, odnosno registracija ako još nemaš korisnički profil....