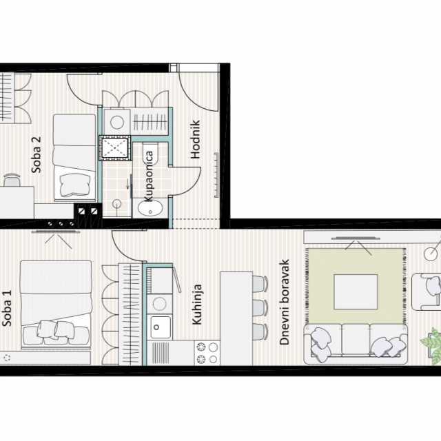
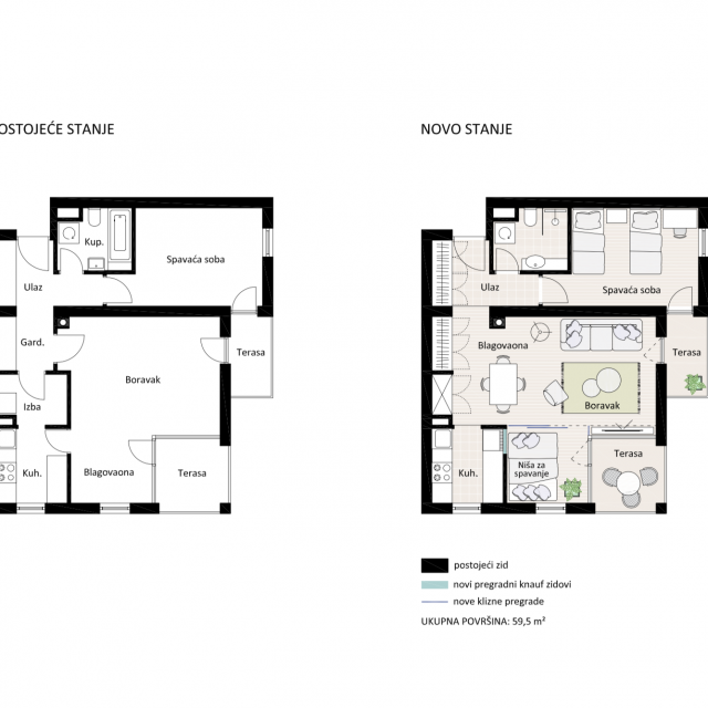
Prioritet broj 1 Kako spavaći dio odvojiti od dnevnog boravka? Dobar raspored u manjim stanovima uvijek je izazov 03.06.2021. u 13:25
mala škola Stan iz 60-ih transformiran u suvremeni dom s dodatnom sobom i vešerajem 18.01.2021. u 04:48
mala škola dizajna Kako majci ostvariti tihu želju - vešeraj, a pritom osmisliti i dvije sobe za sinove? 03.12.2020. u 22:42